Electro-hydraulic recessed scissor lift with play detector VOSA approved
- Hydraulic platforms’ synchronization
- 2 independent hydraulic circuits
- Overload safety valve
- Safety valve in the event of sudden loss of pressure
- Manual descent system in the event of power failures
- “Dead man” controls 24V
- Front recesses
- Lateral guides for Jacking Beams
- Acoustic warning in the last portion of descent
- Mechanical locks between the cylinders for a perfect levelling of the platforms – OPTION 1: recessed installation kit – OPTION 2: on floor installation kit
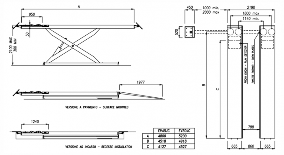
Parameters
| Height | 330 mm |
| Capacity | 4500 kg |
| Power supply | 230-400V/50 Hz |
| Max. height | 2100 mm |
| Motor power | 4 kW |
| Lifting time | 40/30 s |
| Weight | 1400-1500 kg |




