Ką tik pridėta į jūsų krepšelį

Tęsti apsipirkimą

Divstatņu autopacēlājs 4,2t

kodas: EE-62C.42T.EV3-Elbow
gamintojas: HCT Automotive
Yra sandėlyje, 2 žr.
347000Iš viso be PVM 2867.77 €
 



Esto 3

3 x 1,156.67€


    Į kainą įskaičiuotas PVM 21%
    • 3-stage rear support arms equiped with Elbow arms
    • Electric safety lock release
    • Clear floor
    • 5/2/2 warranty support (5 years on main construction / 2years on electric and hydraulioc parts)

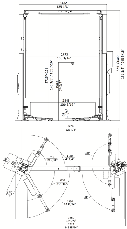
    Parametrai

    Atstumas tarp kolonų2872 / 3016mm
    Keliamoji galia4,2t
    Minimalus aukštis95mm
    1900mm
    Pakėlimo laikas35s
    Stovo aukštis3867mm / 4300mm