Elektrohidraulisks divstatņu pacēlājs
- Simetrisks pacēlājs bez atbalsta rāmja, lai darba vietā būtu vairāk brīvas vietas
- Aprīkots ar divām pacelšanas svirām, kurām nav nepieciešama apkope
- Kabeļi, kas nav gultņi, ratiņu nevainojamai sinhronizācijai neatkarīgi no iekraušanas svara
- 4 pagarinātas trīsdaļīgas atbalsta sviras: ideāli piemērot furgonu un garu riteņu transportlīdzekļu pacelšanai, tāpat piemērots arī standarta transportlīdzekļiem
- Lēnu nolaišanu kontrolē ar hidrauliskā vārsta palīdzību
- Drošības vārsti aizsargā, lai novērstu hidraulisko šļūteņu pārslodzi un plīsumus
- Elektrohidraulisks darbības princips
Parametri
| Augstums | 140 mm |
| Celtspēja | 7000 kg |
| Elektrobarošana (Hz) | 230-400V/50 Hz |
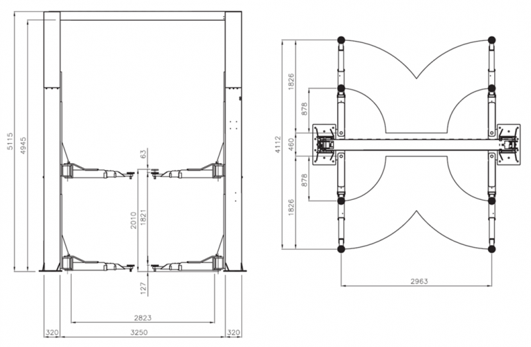
| Max. augstums | 2010 mm |
| Motora jauda | 3 kW |
| Pacelšanas laiks | 44/42 s |
| Svars | 1680 kg |




